Storage

  • While in storage the equipment must be placed in a clean and dry space that is not exposed to water splashes, rain, humidity, high temperatures or the outdoor environment.
  • There can be no harmful gases, flammable and explosive products or corrosive chemicals in the storage space.
  • When stored for a long time, the module must be covered or corresponding measures must be taken to ensure that the module is not affected by contamination from the environment.
  • Avoid mechanical impact, heavy pressure, strong electric fields and strong magnetic fields.
  • Avoid direct sunlight, keep it at a distance ≥2m from heat sources, and the packaging box should be placed ≥20cm high, off the ground, and ≥50cm away from walls, windows or air inlets.
  • The BESS is considered to be in the storage state when it has not been charged or discharged for more than 10 days. You are advised to recharge it to 30% to 50% SOC.

Hoisting

  • When hoisting, a single crane must be used to hoist the battery container to the designated position.
  • The crane must use the lifting spreader for the 20-foot container and connect it with the corner piece of the cabin body through the locking pin mechanism.
  • Before lifting, test lifting shall be carried out, and the hook position must be adjusted to ensure even vertical lifting of the four corners of the container lifting frame.

Installation

Foundation requirements

Your Brunstock BESS must be installed on concrete or another non-combustible surface. The installation surface must be level, firm, flat, and have sufficient weight- bearing capacity. No dents or inclinations are allowed.
When building the foundation, consider the outlet of the BESS and reserve trenches, entrance and exit holes and maintenance channels. For mounting hole positions, see the following figure.

Trench requirements

Brunstock’s BESS requires cable entry from the bottom. In order to prevent foreign objects from entering, there is no cable entry hole on the side of the BESS, and the cable must enter through the trench. Therefore, trenches need to be preset on site. Trenches must meet the following requirements:

  • Since the BESS adopts cable entry from the bottom, the trench must have the necessary dust-proof and rodent-proof features in order to prevent foreign objects from entering.
  • The trench must be waterproof and moisture-proof to prevent cable aging and short circuit, which will affect the normal operation of the BESS.
  • Since the BESS has a large amount of power, and requires thick cables, the trench design must fully consider the cross-sectional area of the cables.

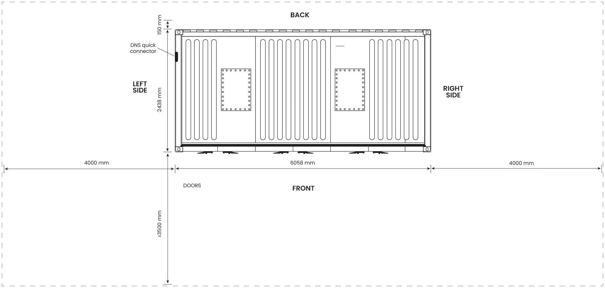
Please see over for a diagram of the space requirements for the installation of a single Brunstock BESS container.

Space requirement per pair of 5MWh Brunstock BESS containers

3D line drawing of a single Brunstock BESS container